Litvínov – Vlnu zájmu na sociálních sítích vzbudila informace města, že se zapojilo s územní studií budoucí čtvrti do soutěže Urbanistický projekt roku 2025. Vizualizace zaujala uspořádáním staveb a organickým pojetím. Kdy se však na vymezené ploše na dohled k janovkému sídlišti a v těsném sousedství s volnočasovým areálem Nové Záluží začne stavět, to je teprve předmětem jednání.
Plocha, kde má nová čtvrť vyrůst, se nachází mezi areálem technických služeb, zahrádkářskou kolonií Janov, ze severu ji lemuje vilová zástavba starého Janova. Místní si pamatují, že v 90. letech proběhl jakýsi pokus o zemědělské využití, kamenitá půda v jižní části s podmáčeným terénem však pak ležela ladem, až opět zarostla. A stala se oblíbenou lokalitou pro pejskaře.
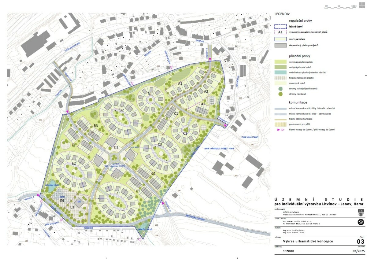
Územní studii pro novou čtvrť vypracovalo studio ARCHITEKT Ondřej Tuček s.r.o. Urbanistický koncept je inspirován příklady zahraničních zahradních měst a organického urbanismu. Mezi nejznámější případy patří například zahradnická kolonie dánského města Brøndby. Chaty připomínající malé obytné domky jsou seřazeny ve tvaru velkých kruhů. O zajímavém pojetí kolonie píše například server Kabinet kuriozit. U Dánů má organický urbanismus poměrně velké množství fanoušků, svědčí o tom i další projekt, který představil ateliér EFFEKT. Projekt Naturbyen, což v překladu znamená Přírodní vesnice, plánuje vystavět na bývalém zemědělském poli na okraji dánského města Middelfart.

Návrh pracuje i s uspořádáním do několika eliptických klastrů, nechybí ale ani klasické řadovky a bytové domy v centrální části. Zdroj studie: město Litvínov/ARCHITEKT Ondřej Tuček s.r.o.
Litvínovany samozřejmě nejvíce zajímá, kdy by se mělo v lokalitě vedle bývalého kovošrotu začít stavět. Přípravné zemní práce totiž v místě proběhly už před více než deset lety. „Zatím nemáme představu, kdy se zahájí realizace. Bude se tím teprve zabývat zastupitelstvo," podotkl místostarosta města Karel Rosenbaum. Jasné není ani to, kdo rezidenční čtvrť vystaví. Co všechno zůstane na bedrech města, zda se bude shánět investor, který vše postaví jako jeden balíček, nebo si každý budoucí majitel bude dům stavět sám. „I v této otázce by nám měli poradit architekti," dodal Rosenbaum.

Plocha určená k výstavbě sousedí s areálem technických služeb. Foto: jip

První zemní práce byly provedeny už před více než 10 roky. Původně odkoupil plochu soukromý investor, nikdy však stavět nezačal a pozemek musel vrátit městu. Foto: jip
Radnice aktuálně řeší další problém, který je na vznik nové čtvrti navázaný, a to dopravní spojení. Roky se mluví o potřebě vybudovat centrální části města směrem na Hamr a Janov jižní spojku. Sloužila by nejen k obslužnosti nové čtvrti, ale řešila by i napojení na areál technických služeb. Město proto zpracovává studii na tuto stavbu. Jižní obchvat by odlehčil páteřní silnici v ulici Podkrušnohorská a konkrétně v Hamru by se velmi ulevilo obyvatelům ulice Jandečkova.
Územní studie řeší i otázku podmáčení terénu v jižní části lokality. Počítá se minimálně se dvěma retenčními nádržemi. Aby obyvatele nové čtvrti nerušil areál sběrného dvora, má od něj být oddělena pásem zeleně. Stejně tak tomu bude i v severní části, kde bude čtvrť navazovat na stávající zastavěnou část.

V pozadí Janovské sídliště, pod ním původní vilová zástavba. Město musí vyřešit, kudy se do nové čtvrti bude jezdit. Ideální by bylo vybudovat jižní obchvat. Foto: jip
Co se týče typů staveb, nepůjde jen o rodinné domky. Studie nabízí bydlení v rodinných domech různých forem doplněných bytovými viladomy v centrální části souboru. Ve středu území je navrženo lokální centrum, kde je zástavba intenzivnější a tvoří ji bytové domy i s náměstím. Celá nová čtvrť má mít dostatečnou občanskou vybavenost i s obslužností MHD.

Studie počítá i s vybudováním centrálního náměstí s bytovými domy. Nová čtvrť by mohla do Litvínova přilákat desítky až stovky nových obyvatel. Zdroj studie: město Litvínov/ARCHITEKT Ondřej Tuček s.r.o
Lidé si celou studii mohou prohlédnout na webu Stavba roku, kde návrh soutěží. Mohou jí samozřejmě dát i svůj hlas, ale také ji porovnat s ostatními soutěžními projekty.






